Domy 3
Základán údaje:
Cena: 275 000€
2450,- €/m2
Výmera pozemku :
563 m2
Rozmery domu:
9×12 m
Zastavana plocha:
108 m2
Spevnené plochy: 70,91 m2
Obytná plocha:
Počet podlaží: 1
Vykurovanie: Tepelné čerpadlo
Fotovoltaika: Nie
Rekuperácia: Nie
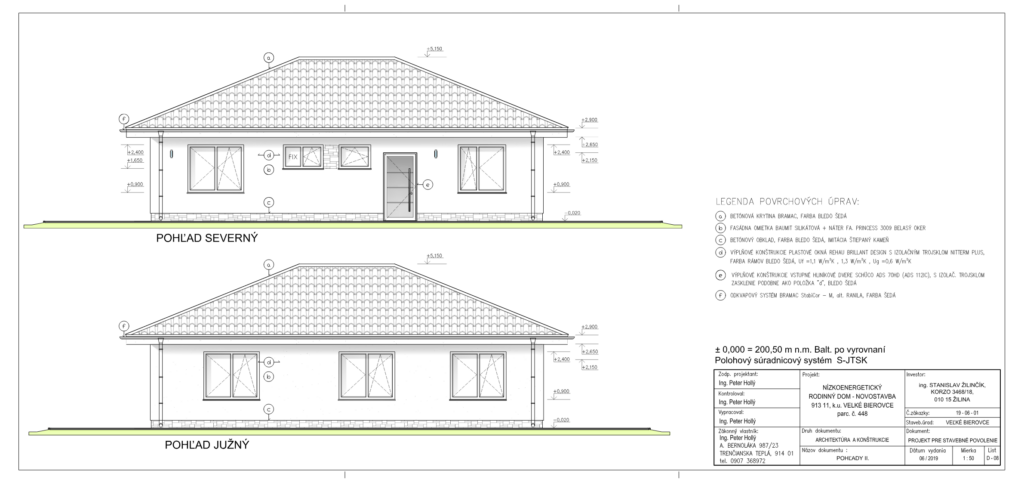
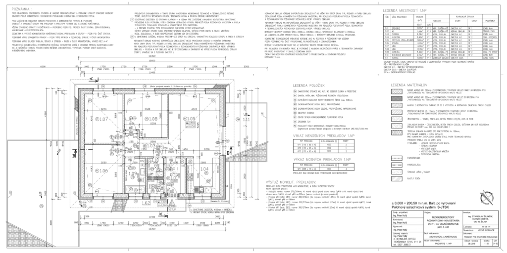
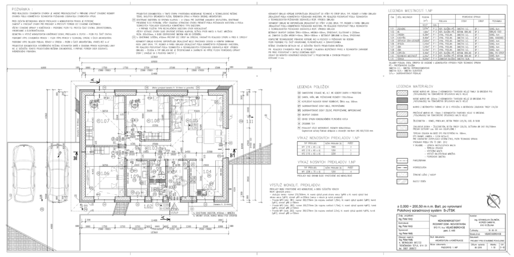
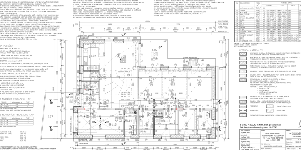
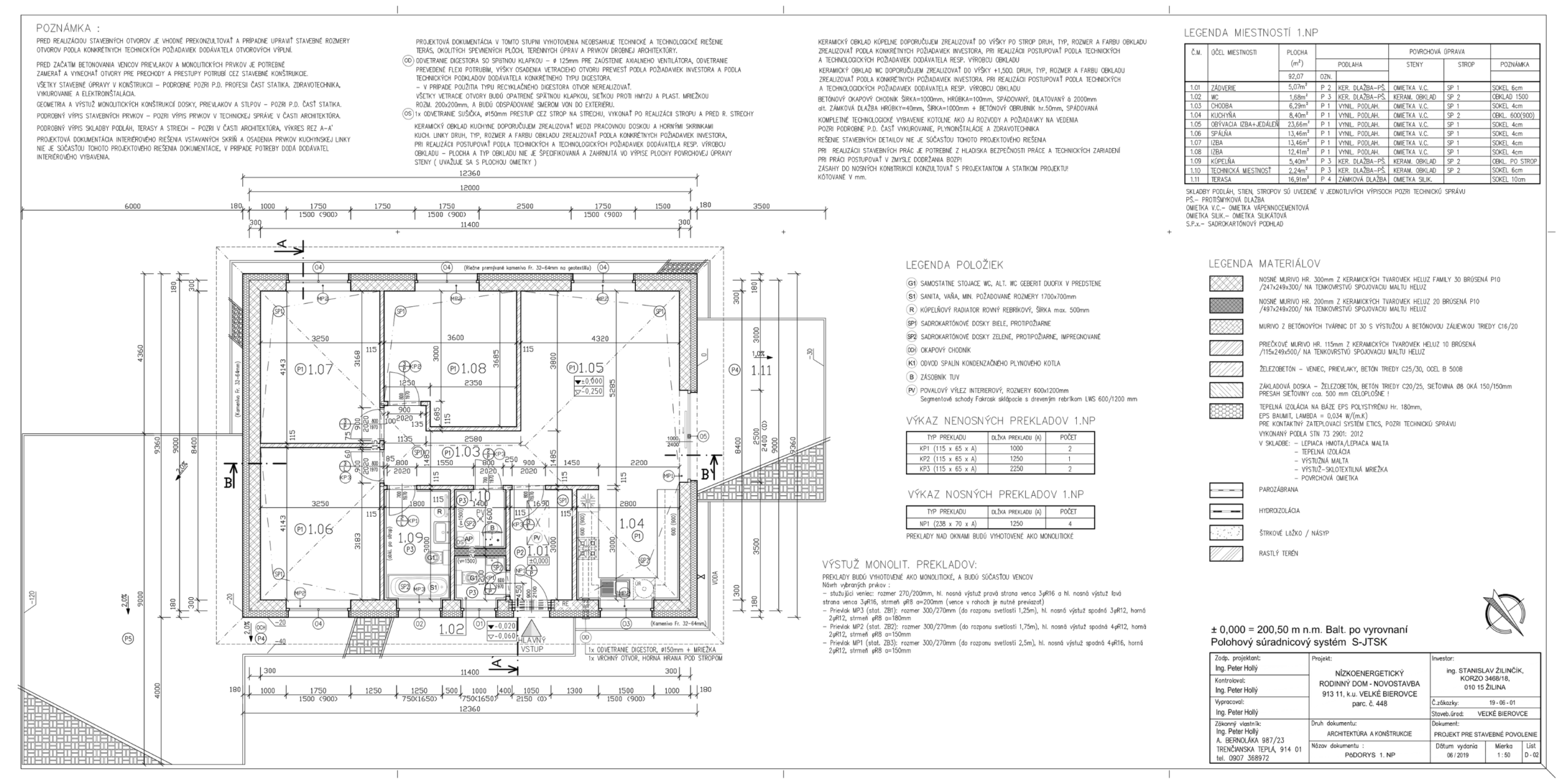
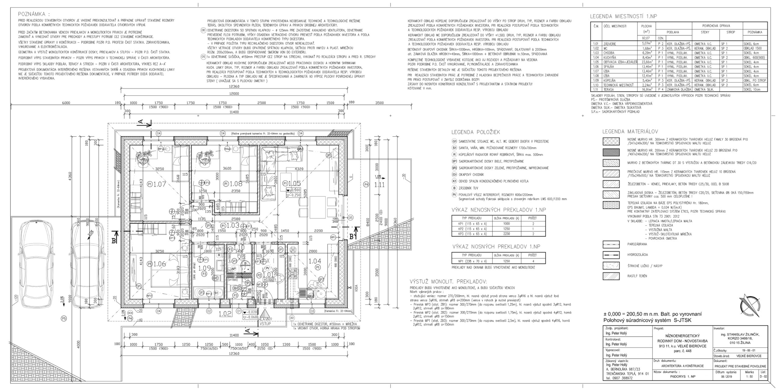
Novostavba je murovaný objekt s jedným nadzemným podlažím obdĺžnikového tvaru.Obvodové murivo je navrhnuté z keramických tvaroviek Heluz Family hr. 300 mm. Vnútorné murivo je hrúbky 200 mm. Konštrukčná výška 1.nadzemného podlažia je 2950 m. Stropná konštrukcia je riešená ako drevený väzníkový krov s podhľadom zo sádrokartónu. Dom je napojený na verejný vodovod a kanalizáciu.
Výkresová časť:
Vizualizácie + aktuálne foto
Základán údaje:
Cena: 375 000€
2450,- €/m2
Výmera pozemku :
m2
Rozmery domu:
m
Zastavana plocha:
m2
Spevnené plochy: m2
Obytná plocha:
Počet podlaží: 2
Vykurovanie: Tepelné čerpadlo
Fotovoltaika: Ano
Rekuperácia: Nie
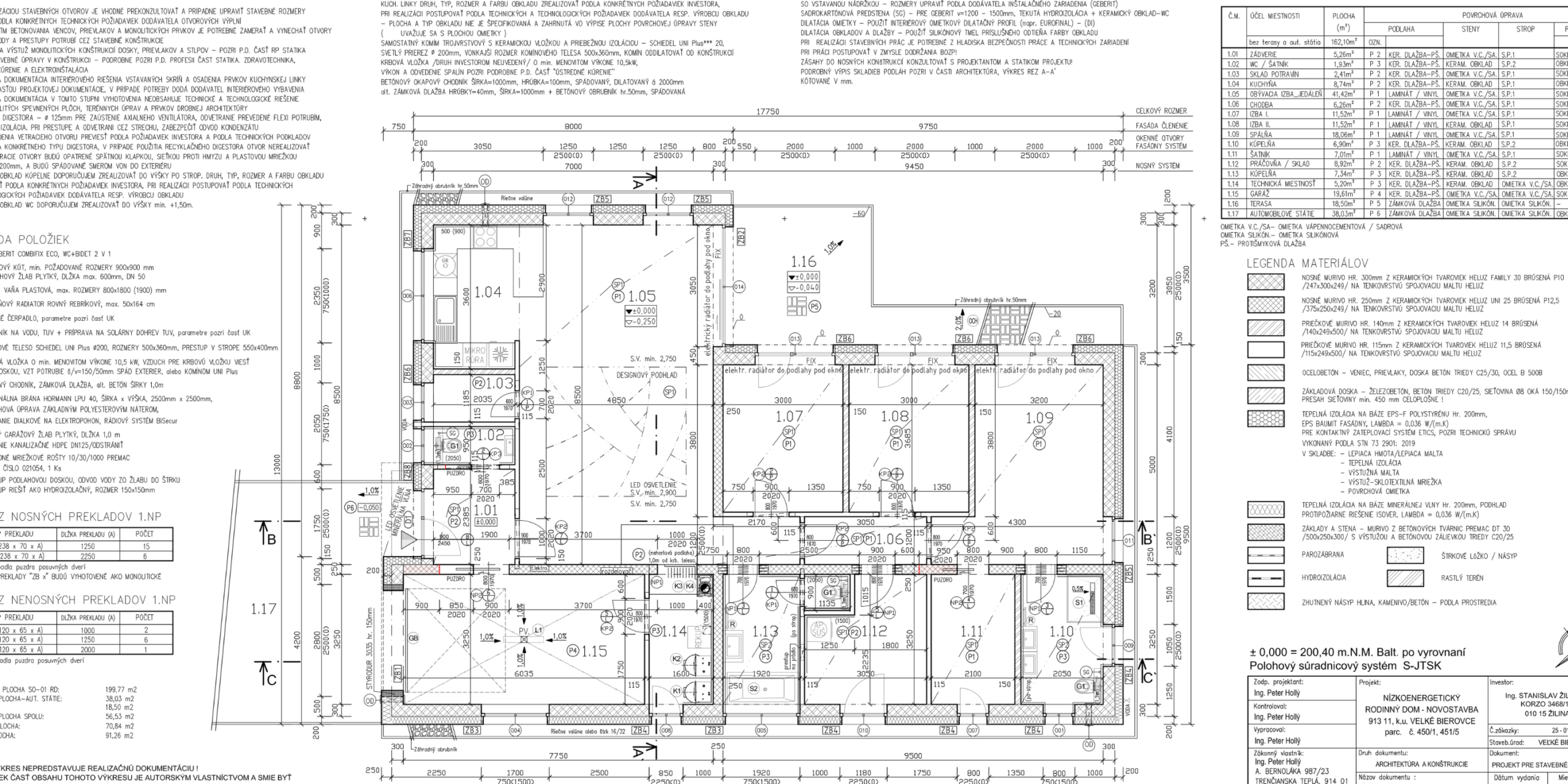
Novostavba je murovaný objekt s jedným nadzemným podlažím obdĺžnikového tvaru.Obvodové murivo je navrhnuté z keramických tvaroviek Heluz Family hr. 300 mm. Vnútorné murivo je hrúbky 200 mm. Konštrukčná výška 1.nadzemného podlažia je 2950 m. Stropná konštrukcia je riešená ako drevený väzníkový krov s podhľadom zo sádrokartónu. Dom je napojený na verejný vodovod a kanalizáciu.
Výkresová časť:
Vizualizácie + aktuálne foto
Pripravujeme, už čoskoro v ponuke
Základán údaje:
Cena: €
,- €/m2
Výmera pozemku :
m2
Rozmery domu:
m
Zastavana plocha:
m2
Spevnené plochy: m2
Obytná plocha:
Počet podlaží: 1
Vykurovanie: Tepelné čerpadlo
Fotovoltaika: Nie
Rekuperácia: Nie
Novostavba je murovaný objekt s jedným nadzemným podlažím obdĺžnikového tvaru.Obvodové murivo je navrhnuté z keramických tvaroviek Heluz Family hr. 300 mm. Vnútorné murivo je hrúbky 200 mm. Konštrukčná výška 1.nadzemného podlažia je 2950 m. Stropná konštrukcia je riešená ako drevený väzníkový krov s podhľadom zo sádrokartónu. Dom je napojený na verejný vodovod a kanalizáciu.
Výkresová časť:
Vizualizácie + aktuálne foto
Aktuálne v ponuke:

Ovčiarsko
Cena: 450 000 €
Jednopodlažný bungalov s rovnou strechov o výmere
Najlepšie bývanie v blízkosti krajských miest
Bývajte s nami
Lorem ipsum dolor sit amet, consectetur adipiscing elit. Ut elit tellus, luctus nec ullamcorper mattis, pulvinar dapibus leo.



































