Veľké Bierovce
$14,299,000
Štýlové a útulné rodinné domy, Trenčianský kraj
Obec Veľké Bierovce leží na ľavom brehu rieky Váh, 10 km juhozápadne od mesta Trenčín, v strednej časti Trenčianskeho kraja. Územie patrí do teplej oblasti podnebia mierne vlhkého s miernou zimou.
Územie obce je rovinaté, katastrom obce Veľké Bierovce preteká rieka Váh a jej derivačný kanál, Soblahovský a Turňanský potok. https://www.velkebierovce.sk/o-obci/zakladne-informacie/
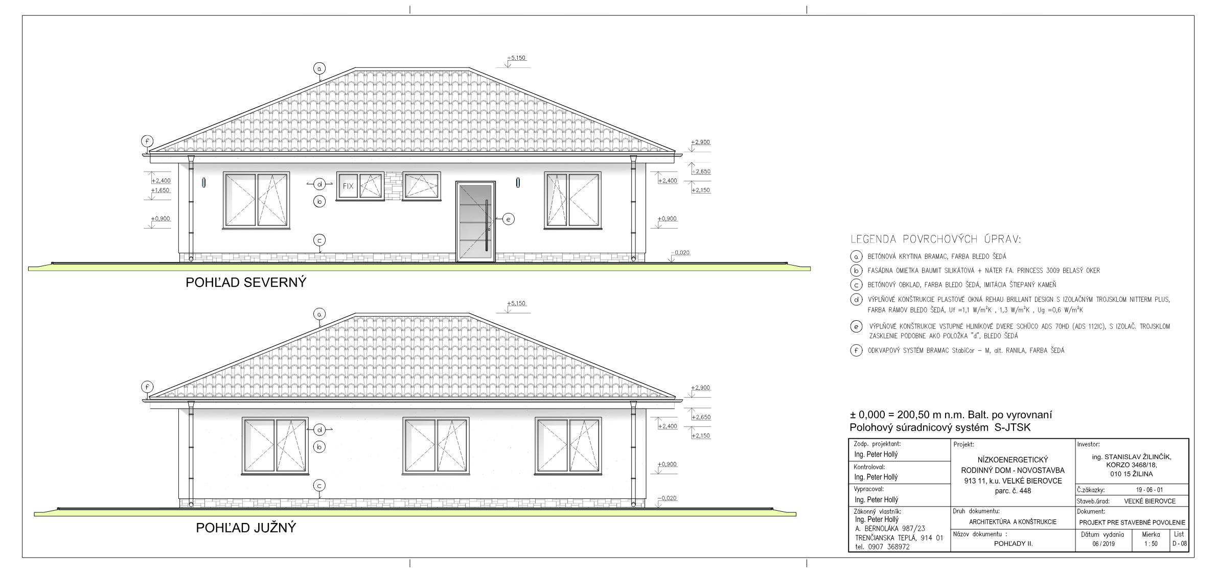
V rámci tohto projektu plánujeme výstavbu 11 tich rodinných domov v troch typoch vyhodovenia.
Detaily
| Pozemkov | 11 ks |
| Typy domov | 3 |
| Výmera pozemku | 450-660 m2 |
| Podlažnosť | 1-2 |
| Lot Size | 5.50 acres |
Rodinné domy Veľké Bierovce
Máte otázky?
Spojte sa s našim regionálnym manažérom
Raymond Georeogh, 0911 655 000


















